Villa Naia
Os presentamos el proyecto de construcción y rentabilidad de esta villa.
LOCALIZACIÓN:
- Situada en el corazón de Bali, en la costa este se encuentra Amed ciudad muy popular entre los turistas. Este lugar te cautivará por su atmósfera familiar, sus increíbles condiciones para el buceo y snorkeling, respirando un clima de relación ideal para los amantes del yoga, donde saborear la pura esencia y la vibrante cultura de la isla.
- Ubicada en medio de la naturaleza a 1.000 metros de la playa con acceso directo a la carretera.
- El área del terreno es de 600 m2.
- A 84 Km del aeropuerto y la capital Denpasar.
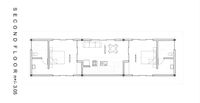
ESQUEMA:
- Es una villa de dos pisos que usa los elementos de una arquitectura moderna con la combinación perfecta de materiales naturales, destacan sus espacios abiertos, combinando la mezcla perfecta entre la vegetación tropical y la atmósfera genuina de este paraíso llamado Bali.
- Consta de 8 habitaciones de lujo con baño privado, dispuestas seis de ellas junto a al salón y una cocina en la planta baja, así como dos habitaciones, salón y cocina en la segunda planta, conectados con la piscina y el jardín, con vistas al mar y a las montañas. Incluye una zona de aparcamiento.
- Las fotos y el diseño se muestran como inspiración del proyecto pudiendo modificarse según las deseos del inversor.
PRESUPUESTO DE INVERSIÓN
- No incluye el precio de compra del terreno ya que se formaría una alianza con el propietario.
RETORNO DE LA INVERSIÓN:
- El presupuesto de construcción se ha realizado utilizando materiales y acabados de alta gama asegurando así la calidad y el diseño de lujo y distinción de la villa.
- El retorno de la inversión asume los máximos costes y el mínimo retorno.
CONCLUSIONES:
- Bali, destino por excelencia que recoge a un turismo selecto y de lujo durante todo el año, que atrapa quizá por sus exuberantes paisajes, la amabilidad de su gente, su cultura hechizante, llevándote a una aventura inolvidable que marcará el viaje de tu vida despertándote un sentimiento difícil de explicar, si no lo has experimentado en el que parece atraerte como un imán a tu corazón.
- Gran oportunidad de inversión ya el ROI en el peor e improbable de los escenarios sería de 4 años ( al incluirse sólo un 50% de ocupación con las tarifas más bajas del mercado por habitación o alquiler de la villa). Lo normal sería amortizarla en 2 años y asegurar unos beneficios que ningún producto financiero podría mejorar en rentabilidad en los próximos 10 años.
- Llave en mano del proyecto contando con un equipo que se encarga de la tramitación de todos los permisos así como el apoyo comercial de nuestra agencia para potenciar la ocupación de la misma y coordinación para el mantenimiento y servicios requeridos de la villa.
- El sistema de tasas en Indonesia es muy simple y se caracteriza por tipos bajos y por sus incentivos en las inversiones, y costes operacionales mínimos palancas de impulso y apoyo en los nuevos proyectos emprendedores en el país.
- Sólo tendrás que tumbarte en el "sekepat" de la piscina a disfrutar de las vistas y los sonidos y sabores del mundo de Bali. O simplemente ver como crecen las cuentas en tu banco ;)
FOLLOW YOUR HEART


.png/picture-200?_=1709ac8e108)



















